Erinnerungsort Amtsgasse

Judenbad
11 / 16

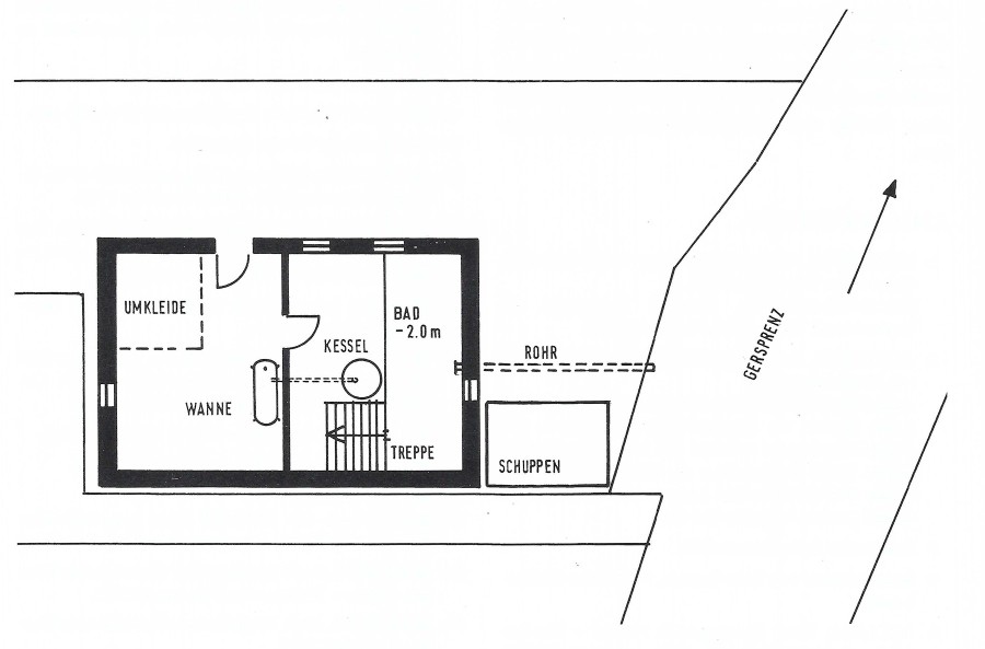
Um 1827 wurde erstmals eine Mikwa, ein Tauchbad in der Nähe des Schlosses erwähnt, später ein Badhaus der israelitischen Gemeinde, das sich in der Schulgasse (heute Brandgasse) befand. 1873 errichtete die jüdische Gemeinde an der Gersprenz ein Frauenbad. Das Haus beherbergte einen Raum mit Wanne, einen Umkleideraum sowie ein Badezimmer. 1936 wurde es an einen Babenhäuser Bürger christlichen Glaubens überschrieben.

1987 wurden die Reste des Gebäudes abgerissen und an gleicher Stelle ein Wohnhaus errichtet. Das Bad war nicht in der Denkmaltopographie des Landkreises Darmstadt-Dieburg gelistet und so nicht geschützt.

Das Judenbad, noch einstöckig, markiert rechts im Feld, Postkarte, um 1900. HGV Babenhausen
Das Judenbad, kurz vor dem Abriss 1987. HGV Babenhausen
Grundriss, aus der Erinnerung des Sohns des Nachbesitzers skizziert. HGV Babenhausen
„[Das Haus] war nicht in die Denkmaltopographie des Landkreises Darmstadt-Dieburg aufgenommen, eine Abbruchgenehmigung war von den Behörden erteilt worden.“
Aus dem Buch „Die Juden von Babenhausen“, 1988
Abrissarbeiten, 1987. HGV Babenhausen